
Az érdi MN3000 bunker egyike Magyarország izgalmas hadtörténeti emlékeinek. Ez a létesítmény nem csupán a második világháború stratégiai szükségleteire reflektál, hanem az emberi kitartás és találmányosság lenyomata is. Az alábbi cikkben bemutatjuk a bunker történelmét, funkcióit, amely ma már kulturális és történeti jelentőséggel bír.





Az MN3000 a 11. honi légvédelmi- rakétadandár parancsnokság bunkere a második világháború után épült azzal a céllal, hogy biztonságos menedéket nyújtsanak a katonai vezetés számára. A létesítmény építése 1977 előtt kezdődött, amikor Magyarország egyre nagyobb nyomás alá került mind a szövetséges, mind a tengelyhatalmak részéről. A bunker neve, az MN3000, egy katonai kódszámra utal, amely az objektum titkos jelölésére szolgált. 1977-1982 között alakult légvédelmi dandárság költözött ide az 54. rádiótechnikai dandárral együtt.
Feladata Budapest légvédelme volt. A létesítmény vezetési központ volt, amely biztosította a kommunikációt és a hadműveletek koordinálását az ellenséges támadások alatt is Budapest környékén. A bunker építésekor a legmodernebb technológiákat használták fel, beleértve a vastag betonszerkezeteket és a korszerű szellőzési rendszereket.
2000- ben bezárják az érdi HÁP (Harc Állás Pont)- ot.

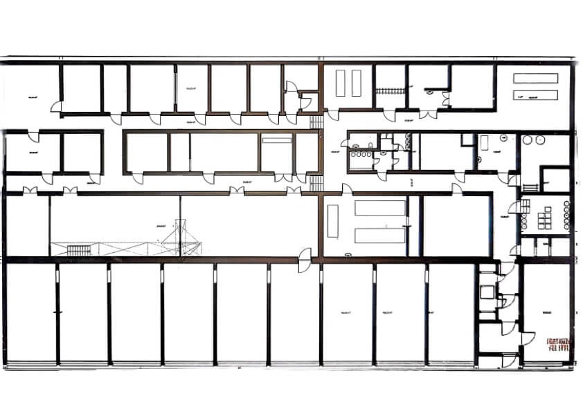
A bunker a Duna–Tisza köze egyik jelentős létesítménye volt. Az építészek és mérnökök számára komoly kihívást jelentett az a cél, hogy a létesítmény ellenálljon a bombázásoknak és az egyéb katonai akcióknak. A bunker teljes hálózata mintegy 1200 négyzetmétert foglal el, amelyet több galéria szintre osztottak.
Az MN3000 belső terei jól megtervezettek voltak, figyelembe véve a katonák hosszútávú tartózkodásának követelményeit. A létesítményben helyet kaptak:
Köszönjük a stilizált térképet a Kalandjáróknak!

Az elektromos energia ellátását helyi generátorok biztosították, míg a vízellátást saját kútakkal oldották meg. A bunker ezen képességei biztosították, hogy a benne tartózkodók rövid időn át képesek legyenek ellátni feladataikat.
Két nagy terem található benne, az egyik a légvédelmi dandárság légi irányítása, a másik az 54. rádiótechnikai II. zászlóalj központja. Ide futottak be a lokátorok mérési eredményei, és itt értékelték ki.


Az MN3000 bunker történeti jelentősége nem csupán a második világháború időszakára korlátozódik. A hidegháború alatt is fontos szerepet töltött be, mivel a magyar hadsereg és a Varsói Szerződés tagjai is kihasználták a létesítményt. Az állandó felülvizsgálatok és karbantartások biztosították, hogy a bunker működőképes állapotban maradjon.
A bunker ma már történeti és kulturális emlékhely, amely betekintést nyújt a múltbeli katonai stratégiákba és életmódba. Az érdeklődők megismerhetik, hogyan működtek ezek a titkos objektumok, valamint hogy milyen szerepet játszottak a magyar történelem alakításában.
Az MN3000 bunker jelenleg elhagyatott, nem látogatható.
Az MN3000 nem csupán a hadtörténet iránt érdeklődők számára jelent érdekes célpontot, hanem mindazoknak, akik szeretnék felfedezni a magyar történelem kevésbé ismert oldalait.
Sajnos folyamatosan pusztul, és amit lehetett azt elvitték belőle, ami mozdítható volt ellopták. Bunkertúra kapcsolat